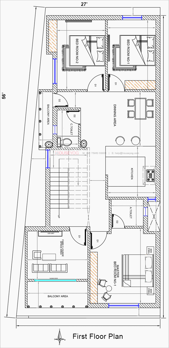
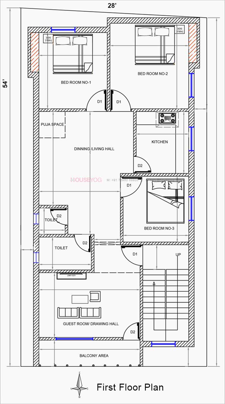
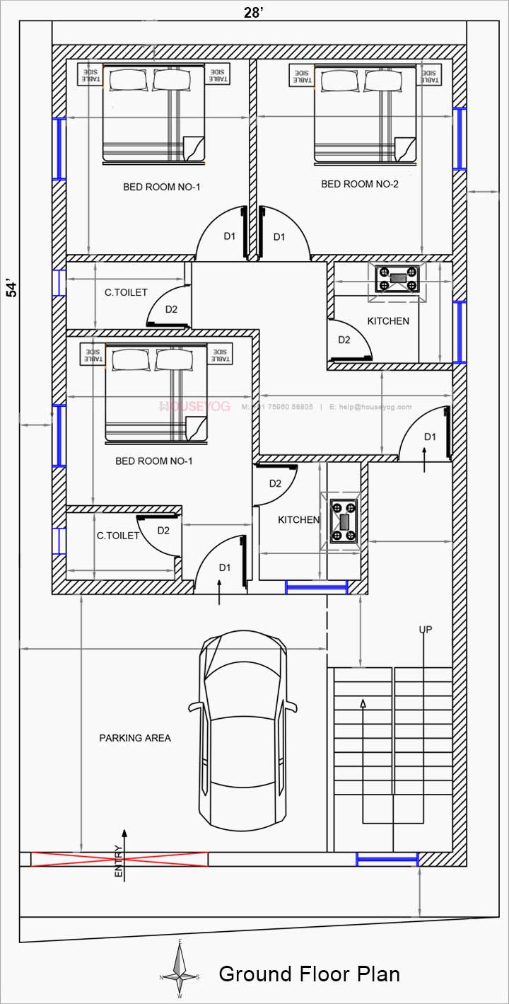
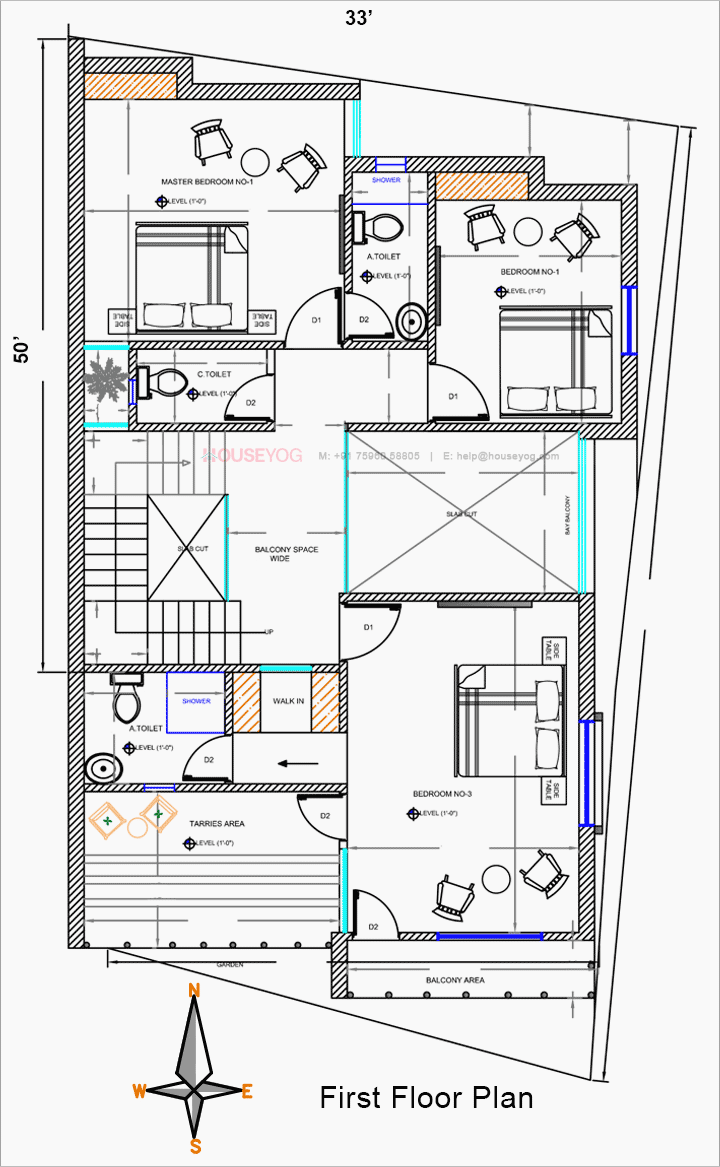
A floor plan drawing is an architectural drawing that shows the layout or the division of overall space on a particular floor. House floor plan drawing for a particular floor helps in visualizing the division of space into different room like bedroom, washroom, kitchen, passage, garage, utilities space and free space, along with allotted size to these rooms and spaces.
Apart from making the overall house design aesthetically good and comfortable, nicely designed floor plan can increase the resale value of a building. And because it helps plan and visualize the overall layout of a particular floor of the house, it can immensely help you in avoiding wasting any space while constructing the building.





















